Avaleht Andmed & kaart Dokumendid
Registriobjektidega seotud infomaterjalid
Otsi materjale


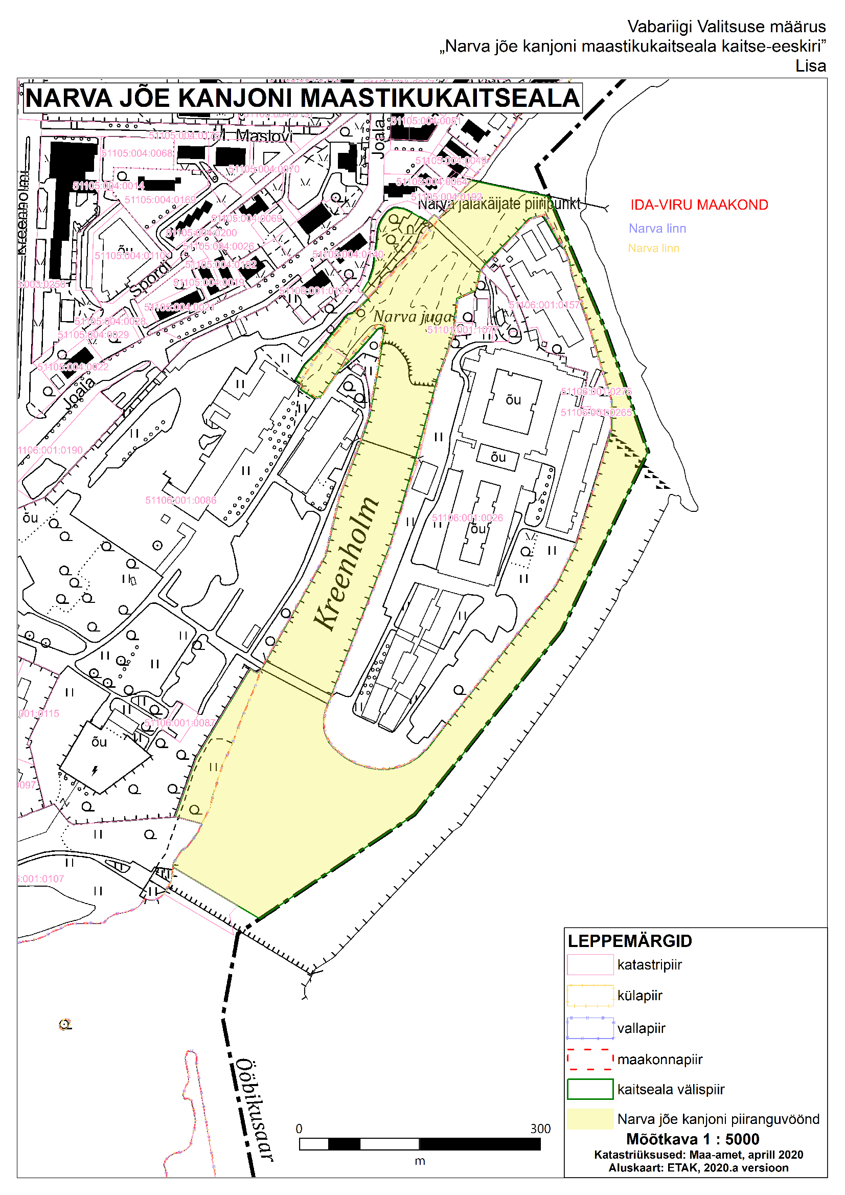
Dokument: Vabariigi Valitsuse 13. jaanuari 2022. a määrus nr 4 "Narva jõe kanjoni maastikukaitseala kaitse-eeskiri"


Pealkiri
Vabariigi Valitsuse 13. jaanuari 2022. a määrus nr 4 "Narva jõe kanjoni maastikukaitseala kaitse-eeskiri"
 
Dokumendi tüüp
Määrus
 
Väljaandja / koostaja
Vabariigi Valitsus
 
Väljaandmise aeg / kehtivuse algus
28.01.2022
 


Dokumendiga seotud lingid ning allalaetavad failid

Riigi Teataja
Ava


Dokumendiga seotud fotod



Narva jõe kanjoni MKA kaardipilt
Lisa jpg (1,7 MB)



Dokumendi seosed registriobjektidega
Objektide arv: 2

Objektitüüp Nimi Kood Kehtivus Seotud dokumentide otsing
Kaitstav ala > maastikukaitseala, looduspark Narva jõe kanjoni maastikukaitseala KLO1000542 kaitsealune Otsi:'KLO1000542'
Kaitstav ala > maastikukaitseala, looduspark Narva jõe kanjoni MKA, Narva jõe kanjoni pv. KLO1100710 kaitsealune Otsi:'KLO1100710'








© 2024 Keskkonnaportaal EELIS 6.1.40